
The editor of WSCAD ELECTRIX is a powerful tool for designers that significantly improves the workflow thanks to a wide range of functions. In this blog post, we will look at the 10 most important points that make the ELECTRIX Editor better and make work more convenient and precise for designers.
More convenience
Convenience is a key word in modern CAD. A pleasant workflow is crucial to be able to work efficiently. Here are some of the aspects that make the ELECTRIX Editor particularly convenient:
3. Independent drawing sheet
In the previous WSCAD products, the drawing sheet was docked to the top left corner of the screen and could not be moved from there. Zooming and penning were therefore somewhat more difficult and the entire area around the sheet could not be used. In the ELECTRIX Editor, you can now position the sheet freely on the screen and use the entire drawing area. This is particularly helpful when merging content from different pages.
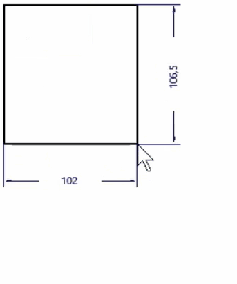
6. Visual support when drawing graphic elements
The last point in the comfort category is the visual support when drawing graphic elements such as lines, circles, etc. This is a great advantage when drawing where the size of objects is given in millimetres. Not only can you see the millimetres, you can also interact with them. By pressing the tab key, you can enter the size of the objects manually – for maximum precision. And precision is the second category that simply makes the editor better.

More precision
Precision is crucial in certain areas of construction, such as cabinet engineering and electrical installation.
7. Better positioning when moving objects
You can now precisely define the distances when moving objects. A common scenario here is the placement of a cable duct at a certain distance from the top of the mounting plate. When moving the cable duct, the values for the distance to the mounting plate can now be inserted by pressing the tab key twice.

8. Magnetic snap points for object-related object alignment
When moving objects, magnetic snap points are displayed to make it easier to align objects precisely. These snap points appear on the objects when other objects are moved in their vicinity. This makes it very easy and quick to align objects with each other.

9. Improved function for object alignment
The commands for aligning objects in the ELECTRIX Editor have been optimised. In the WSCAD SUITE, there were six different buttons with which you could align the objects left, right, top, bottom, centre horizontally or centre vertically. In the ELECTRIX Editor, all six buttons have been combined into one. In addition, it no longer matters in which order you select the objects because you can now define the master object subsequently.

10. Visual feedback on object alignment
In addition to the improved object alignment function, the ELECTRIX Editor provides visual feedback on where and how objects are aligned. This makes it easier to understand the alignment process.

What makes the ELETRIX EDITOR so brilliant?
What makes the ELECTRIX Editor really great is the overall package of these functions. Each individual function contributes to making the work process more convenient and precise. The seamless interplay of convenience and precision makes the ELECTRIX Editor an invaluable tool for designers.
It is not just the sum of the parts, but the synergy of these functions that makes this editor an outstanding choice for professional designs. With the ELECTRIX Editor, you can design your projects more efficiently and precisely than ever before.
 
 
 
 


